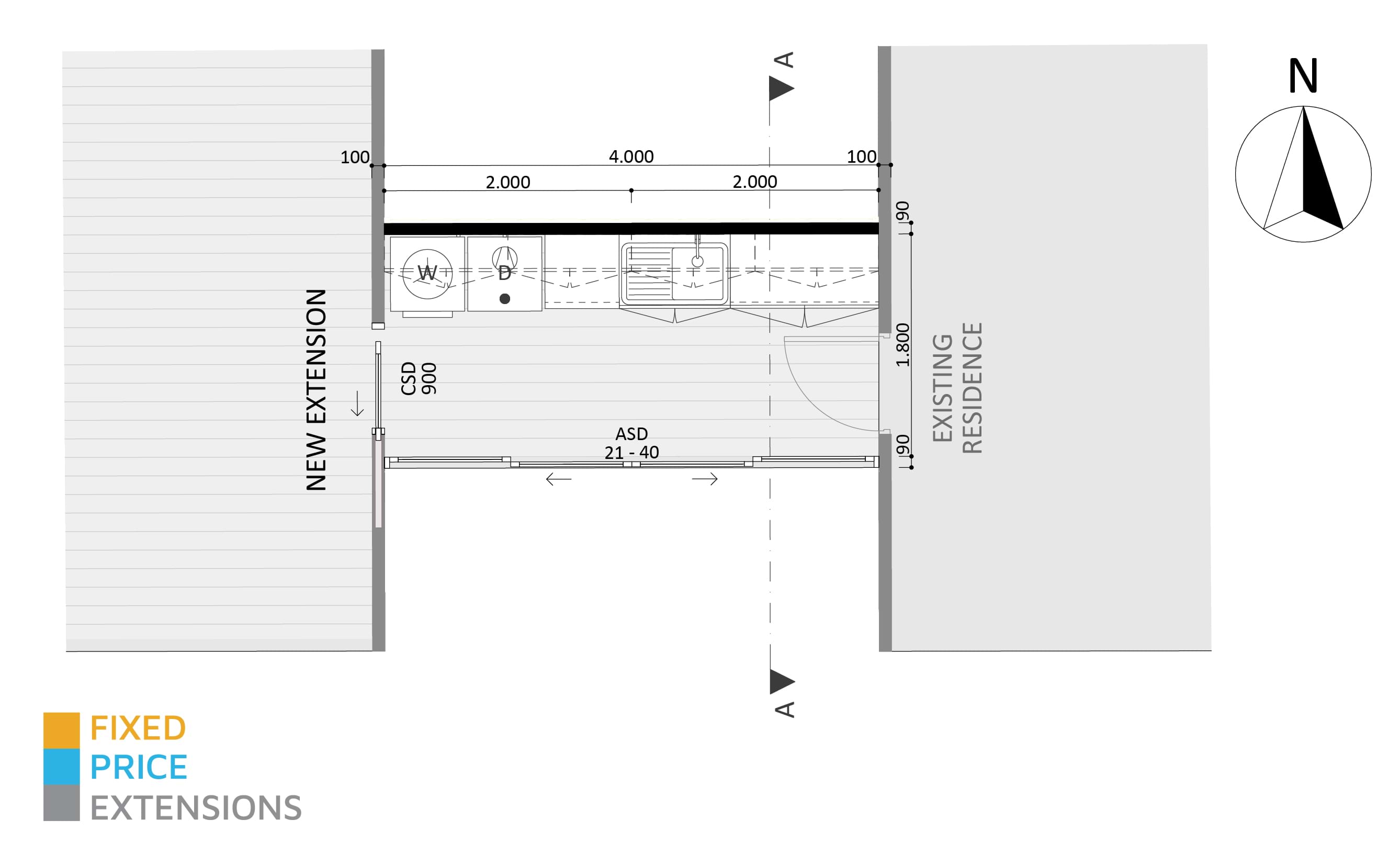
Our range of hallway links design bring you added style, storage and even bathroom facilities. Browse our range or contact us to design your own Hallway link ideas.
These hallway links provide safe, comfortable access between your existing residence and new semi-detached extension, as well as adding even more functionality depending on your design choice.